1 / 5
| Model NO. | WW-WH-MB-0015 |
| Type | Single-Storey Warehouse |
| Application | Warehouse, Workshop |
| Drawing Design | Autocad, Tekla |
| Certification | ISO, CE |
| Surface Treatment | Painted or Galvanized |
| Standard | GB |
| Connection Form | Bolt Connection |
| Earthquake Resistance | Grade 8 |
| Life Time | 50 Years |
| Steel Grade | Q235, Q345, Q355 |
| Roof & Wall | Sandwich Panel or Steel Sheet |
| Production Capacity | 3000 tons/Month |
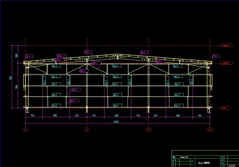
Single-span gabled steel warehouse with spread footings. Dimensions: 26m×20.6m×5m(eave). The structure is pre-engineered to accommodate photovoltaic panel mounting systems. Featuring 100mm shale brick walls and 0.5mm profiled steel cladding. 0.5mm concealed-fastened steel roof with translucent panels, free drainage design. Total area: 535.6sqm.
| Structural System | Single-span gabled steel frame |
| Dimensions | 26m (L) × 20.6m (W) × 5m (H) |
| Energy System | Photovoltaic Panel Ready |
| Wall Material | Shale brick + 0.5mm Steel Sheet |
| Roof Material | Concealed-fasten Steel + Translucent panels |
| Floor Area | 535.6sqm |







